L’expertise télécom au service de vos infrastructures
L’expertise télécom au service de vos infrastructures

Bureau d'Etude Technique Radio

Bureau d'Etude Technique FTTH
Cometa dispose d’une expertise reconnue dans les télécommunications radio et fibre optique.
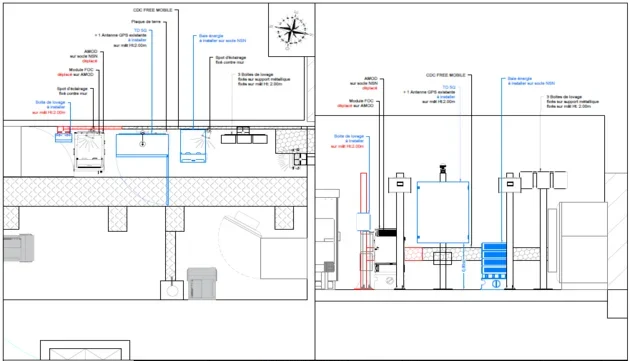
Notre bureau d’études accompagne l’ensemble des opérateurs dans le déploiement de sites neufs, le réaménagement et l’évolution 5G des infrastructures, sur toutes les trames et pour tous types d’architectures : pylônes, toitures en pente, toitures terrasses, châteaux d’eau, églises…
Grâce à une organisation rigoureuse et une parfaite maîtrise des exigences opérateurs, Cometa garantit des études fiables, conformes et réalisées dans des délais optimisés.
Nous intervenons sur l’ensemble du cycle d’études, depuis la phase amont jusqu’à la livraison finale des dossiers.

Visites techniques et conception

Avis de faisabilité + NDC structure + Plan de Fabrication

Dossiers techniques
APS / APD / DOE / Synoptique...

Dossiers administratifs
DP / DIM / Cosmis / Metro
Ingénierie Télécom
Conformité Opérateur
Standards TowerCo
Qualité & Fiabilité
Expertise Terrain
Déploiement Réseaux
Maintenance Télécom
Performance
Traçabilité
Sécurité Réseau
La mission du BET Télécom de Cometa est d’accompagner la transformation et l’évolution des réseaux télécoms en apportant une expertise indépendante et une vision globale des projets. Le bureau d’études sécurise les choix techniques, anticipe les contraintes de terrain et contribue à la pérennité des infrastructures. Cometa s’inscrit ainsi comme un partenaire de confiance pour garantir des déploiements cohérents, évolutifs et adaptés aux enjeux actuels et futurs des réseaux.

Mise en place et installation complète des infrastructures radio et FTTH

Élaboration de documents et plans respectant les normes et exigences opérateurs

Suivi et intervention pour garantir la disponibilité et la performance des réseaux

Analyse et amélioration continue des infrastructures pour une efficacité maximale
Cometa assure la réalisation complète des études et documents techniques nécessaires au déploiement des réseaux télécoms. Les trames produites comme APS, DTI, APD, DC, DOE, DTF ainsi que les plans, synoptiques et comptes rendus terrain sont élaborées conformément aux standards des opérateurs et des TowerCo. L’ensemble garantit des livrables fiables, structurés et adaptés aux exigences de chaque projet.

Axians GAVRELLE / VITROLLES / VAL DE REUIL...
Ambition mobile, Ajout FH, DI, Réam 5G...

SAINT HERBLAIN / AIX / GEISPOLSHEIM / CERGY...
Ajout FH / VDR / Réam 5G / Accueil...


IDF / NORD / SAINT AUBIN SUR GAILLON...
Accueil / MIMO 4*4 / Ajout 5G ...

Axione IDF
DI / Accueil / MIMO / Ambition mobile...

LA CHAPELLE / ROUSSET
Réam 5G / MIMO 4*4...


C’est l’étude de la zone arrière PMZ et PA.
Livrables : Fiche PA


C’est la modélisation de l’étude par la création des équipements nécessaires sur IPON.
Livrables : Fiche PA à jour


Ce sont des documents à livrer après la réalisation des études PB de rue et immeuble.
Livrables : Commandes d’accès / plans itinéraires / plans de tirages / plans d’épissurages / panneaux de brassage / route optique / synoptiques GFI-IPON / fiches de prévention

Sa consiste à remplirun fichier Excel qui va être utiliser après par l’équipe BE pour la réalisation de l’étude PB immeuble et par l’équipe terrain.
Livrables : Fiche immeuble à jour


C’est la phase finale de l’étude et la clôture du projet déployé.
Livrables : FOA / Fiche appui / Fichiers de Mesure

Grace PRO :
Grace EXE :
Livraison infrastructure et BAL
Livraison De la chambre à la BAL (itinéraires)
RESAcode (étiquettes câbles)
Grace REC :

Conception d’une zone SRO selon les règles d’ingénierie du client.
Livrables : Shapefiles / Plans d’adduction / Plans de câble / Plans SRO avec montage photo

Mise à jour de la zone SRO selon le retour terrain.
Livrables : Shapefiles
Numérisation du réseau existant (Assainissement, eau, gaz, électricité…
Livrables : Plan cadastral AutoCAD

Livrables : Annexe C6-C7-C4 / Fiches appuis

Livrables : Export Excel et PDF
Mise à jour de l’étude APD
Contrôle des livrables et la capacité d’intégration dans la base de données globale de gestion avant la mise en exploitation.
Le respect des règles d’ingénierie propres à chaque opérateur
Le respect des trames et chartes graphiques définies par chaque TowerCo / aménageur













COMETA dispose d’une RCP et d’une garantie décennale couvrant l’ensemble de ses activités Data Center, assurant la sécurité et la conformité de ses interventions.

COMETA utilise Monday pour piloter et suivre l’ensemble de ses projets. Cette plateforme collaborative, certifiée ISO pour la sécurité de l’information, garantit la confidentialité, l’intégrité et la protection des données clients.

