Bureau d’Etudes Techniques
Data Center

Experts en infrastructures Data Center fiables et évolutives

Offre de services BET Data Center

COMETA accompagne ses clients dans la conception, l’optimisation et la gestion de leurs infrastructures Data Center, en garantissant performance, fiabilité et conformité technique à chaque étape du projet.

BET Data Center

Recherche et qualifications de sites

BET Data Center

Audits

BET Data Center

Esquisse (étude de faisabilité)

BET Electricité

Rédaction des programmes

BET Data Center

Assistance à Maîtrise d’Ouvrage (AMO)

BET Data Center

Maîtrise d’œuvre (MOE)

Directeur BET Data Center

BET Data Center
BET Data Center

En 2025, Régis Marilleau prend la direction de l’activité BET Data Center chez COMETA.

Il est également membre du Comité Stratégique, contribuant activement à la gouvernance et à la définition des orientations stratégiques du groupe.

Orange France

17 ans au service de l’ingénierie Data Center d’Orange

Orange MEA

Accompagnement de 7 filiales Orange en Afrique et en Europe

Orange France

Direction de la phase de construction du Data Center de Normandie (Val-de-Reuil)

BET Data Center

Bouygues Telecom

coordination MOCO de 130 sites Backbone chez Bouygues Telecom

Track record

Data Center Val de Reuil

Régis Marilleau accompagne Orange France dans la conception et la réalisation de ses infrastructures Data Center, en assurant performance énergétique, haute disponibilité et conformité aux standards internationaux. Son expertise technique et sa gestion de projet rigoureuse garantissent des installations fiables, sécurisées et adaptées aux besoins stratégiques de l’opérateur.

2005-2015
2015-2025
2020-2025

AMO Construction Data Center - Orange Guinée Conakry

Construction d’un Data Center Caractéristiques du projet

Client : Orange Guinée Conakry

Mission : Assistance à Maitrise D’Ouvrage

Lieu : Conakry - Guinée

Date : Décembre 2022

Phase 1 : Salle 1 de 400m² et 400KW

Mission : Salle 2 de 400m² et 400KW

Architecture : Tier IV

Solarisation du site

Construction d’un Data Center Caractéristiques du projet

Client : Orange Guinée Conakry

Mission : Assistance à Maitrise D’Ouvrage

Lieu : Conakry - Guinée

Date : Décembre 2022

Phase 1 : Salle 1 de 400m² et 400KW

Mission : Salle 2 de 400m² et 400KW

Architecture : Tier IV

Solarisation du site

Audits continuité de service et performance énergétique

Client
Type audit
Nbre bâtiments
Type bâtiment
BET Data Center MTN Liberia
CS
3
Mixte
Orange Tunisie
CS
1
Mixte
Orange Cameroun
CS
1
Data Center
Orange Mali
CS + PE
5
Mixte
Orange Jordanie
CS + PE
1
Mixte
Orange Côte d’Ivoire
CS
1
Mixte
Client
Type audit
Nbre bâtiments
Type bâtiment
BET Data Center MTN Liberia
CS
3
Mixte
Orange Tunisie
CS
1
Mixte
Orange Cameroun
CS
1
Data Center
Orange Mali
CS + PE
5
Mixte
Orange Jordanie
CS + PE
1
Mixte
Orange Côte d’Ivoire
CS
1
Mixte

Etudes et réalisations Data Center

Audits continuité de service et performance énergétique

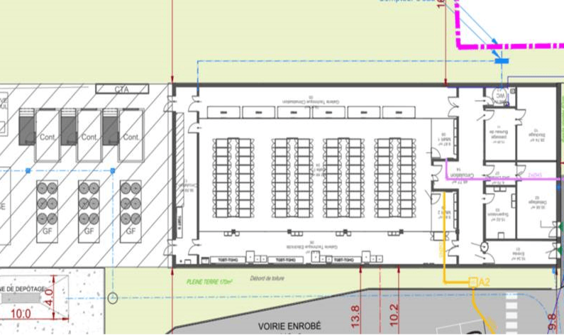
Esquisse d’urbanisation d’un site DC

Cometa prévoit de déployer un Data Center de proximité, installé sur une infrastructure de type « Dalle Numérique ».

Ce projet a pour objectif de créer une plateforme capable d’héberger les équipements nécessaires au stockage et au traitement local des données, afin d’offrir puissance, proximité et réactivité.

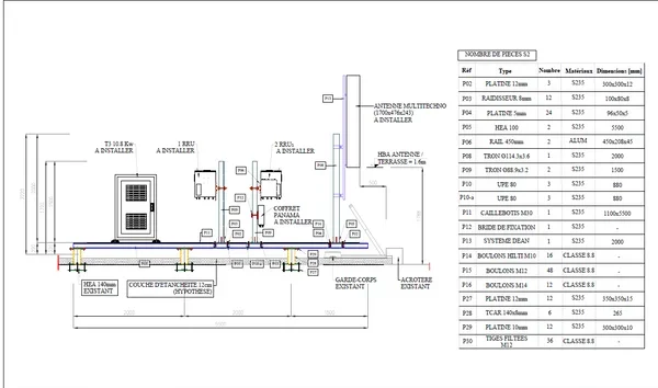
Etude structure sur bâtiment DC pour implantation Antenne

Cometa réalise l’étude structurelle du bâtiment DC pour l’implantation d’une antenne Orange, incluant le NDC et le plan de fabrication

Infrastructures fiables

Des solutions solides et durables pour vos projets

Performance énergétique

Maximiser l’efficacité tout en réduisant l’empreinte énergétique

Conformité réglementaire

Garantir le respect des normes et réglementations

Nos partenaires et projets

Certifications et sécurité de l’information

COMETA dispose d’une RCP et d’une garantie décennale couvrant l’ensemble de ses activités Data Center, assurant la sécurité et la conformité de ses interventions.

BET Data Center

COMETA utilise Monday pour piloter et suivre l’ensemble de ses projets. Cette plateforme collaborative, certifiée ISO pour la sécurité de l’information, garantit la confidentialité, l’intégrité et la protection des données clients.

BET Data Center
BET Data Center